Bình lọc Kripsol BK1 Series – Giải pháp lọc hồ bơi hiệu quả
Giới thiệu sản phẩm
Bình lọc Kripsol BK1 Series là dòng thiết bị lọc hồ bơi cao cấp được sản xuất theo công nghệ bobbin – wound (cuốn sợi thủy tinh nhiều lớp).
Thiết kế chắc chắn, chịu áp lực tốt và chống ăn mòn tuyệt đối giúp sản phẩm hoạt động bền bỉ trong mọi điều kiện khí hậu.
Được sản xuất tại châu Âu thương hiệu Kripsol (Tây Ban Nha) , dòng BK1 Series đáp ứng nhu cầu lọc nước cho hồ bơi dân dụng và bán thương mại, đảm bảo nguồn nước luôn trong sạch, an toàn và ổn định trong suốt quá trình vận hành.

Đặc điểm nổi bật của bình lọc Kripsol BK1 Series
- Công nghệ Bobbin – Wound tiên tiến: Thân bình được cuốn bằng sợi thủy tinh nhiều lớp, giúp tăng độ bền và khả năng chịu áp suất cao.
- Áp suất hoạt động ổn định: 0.5 – 1.5 kg/cm², phù hợp với hầu hết các hệ thống lọc hồ bơi hiện nay.
- Van 6 chiều đa năng: Cho phép rửa ngược, xả cặn và bảo trì dễ dàng chỉ với thao tác đơn giản.
- Nắp trong suốt: Giúp quan sát hoạt động bên trong và kiểm tra tình trạng vật liệu lọc thuận tiện.
- Thiết kế thân thiện: Dễ dàng lắp đặt, vận hành êm ái, tiết kiệm điện năng.
- Ứng dụng linh hoạt: Dùng cho hồ bơi gia đình, khách sạn, resort, trường học, khu dân cư và khu thể thao.
Thông số kỹ thuật bình lọc Kripsol BK1 Series
- Nhiệt độ nước tối đa: 50°C
- Áp suất hoạt động: 0.5 – 1.5 kg/cm²
- Áp suất tối đa: 2.5 kg/cm²
- Áp suất thử nghiệm: 3.75 bar
- Tốc độ lọc tiêu chuẩn: 50 m³/h/m²
- Vật liệu cấu tạo: Polyester + Fiberglass + ABS + PC
- Kích thước hạt vật liệu lọc: 0.4 – 0.8 mm
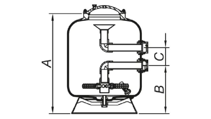
Các model trong dòng Kripsol BK1 Series

| Model | Lưu lượng (m³/h) | Đường kính (mm) | Kết nối (In/Out) | Diện tích lọc (m²) | Cát chứa (kg) | Kích thước (A-B-C mm) |
|---|---|---|---|---|---|---|
| BK1-500 | 10 | Ø500 | 1.5″ | 0.19 | 22 | 700 – 337 – 125 |
| BK1-600 | 14 | Ø600 | 1.5″ | 0.28 | 24 | 800 – 382 – 125 |
| BK1-750 | 21 | Ø750 | 2″ | 0.44 | 29 | 865 – 397 – 141 |
| BK1-900 | 32 | Ø900 | 2″ | 0.63 | 64 | 950 – 435 – 141 |
Lưu ý: Khi thay van, nên chọn đúng loại van và đầu nối tương thích để đảm bảo hiệu suất lọc tốt nhất.
Ưu điểm vượt trội của bình lọc Kripsol BK1 Series
- Độ bền cao, chịu được áp lực và nhiệt độ lớn.
- Lọc nước hiệu quả, đảm bảo độ trong sạch tối ưu.
- Thiết kế gọn gàng, dễ lắp đặt và bảo dưỡng.
- Tiết kiệm năng lượng, giảm chi phí vận hành dài hạn.
- Bảo hành chính hãng, linh kiện thay thế dễ tìm.
Ứng dụng
Với những thông số, đặc điểm BMA Pool giới thiệu bên trên bình lọc Kripsol BK1 được ứng dụng rộng rãi tại:
- Hồ bơi gia đình, biệt thự.
- Hồ bơi khách sạn, resort, khu nghỉ dưỡng.
- Hồ bơi trường học, khu dân cư, khu thể thao.
- Hệ thống lọc nước cho hồ bơi bán thương mại.
Vì sao nên chọn bình lọc Kripsol BK1 Series?
- Sản phẩm chính hãng Kripsol – thương hiệu Tây Ban Nha nổi tiếng về thiết bị hồ bơi.
- Ứng dụng công nghệ sợi thủy tinh cao cấp, đảm bảo độ bền và tuổi thọ dài lâu.
- Hiệu suất lọc mạnh mẽ, nước luôn sạch – trong – an toàn.
- Được tin dùng tại hàng nghìn công trình hồ bơi trên toàn cầu.
Lý do nên chọn sản phẩm chính hãng tại Bma Pool

Bma Pool – đơn vị phân phối thiết bị chính hãng tại Việt Nam, cung cấp đầy đủ dòng bơm ngược dòng với bảo hành chính hãng, dịch vụ hậu mãi uy tín và đội ngũ kỹ thuật chuyên nghiệp.
Chúng tôi cam kết mang đến cho bạn:
- Sản phẩm chính hãng – giá tốt nhất thị trường
- Tư vấn chọn máy phù hợp quy mô hồ bơi
- Hỗ trợ lắp đặt, hướng dẫn vận hành tận nơi
- Bảo hành dài hạn
Liên hệ ngay để được tư vấn & báo giá thiết bị tốt nhất:
CÔNG TY TNHH THƯƠNG MẠI VÀ DỊCH VỤ KỸ THUẬT BMA
Trụ sở chính: Số 41, ngõ 515/13 Hoàng Hoa Thám, phường Vĩnh Phúc, quận Ba Đình, TP. Hà Nội
Văn phòng giao dịch: LK456 – DV12 – Khu đô thị Mậu Lương – Kiến Hưng – Hà Đông – Hà Nội
Hotline: 0828 364 222
Website: www.bmatech.vn / www.bmapool.vn / www.bma24.vn
Email: bmatech.vn@gmail.com
Bma Pool – Nhà cung cấp thiết bị chính hãng tại Việt Nam.
Hãy để chúng tôi giúp bạn tạo nên không gian hồ bơi hoàn hảo với công nghệ lọc nước tối ưu nhất!











Đánh giá
Chưa có đánh giá nào.